Zurück zur Ergebnisliste Biete Praxisimmobilie ID 27259

Gestalten statt suchen: Großzügige Praxisfläche im Stadtzentrum

Beschreibung

Ihre Praxis ist mehr als nur ein klassischer Arbeitsplatz. Sie ist ein Ort, an dem sich Ihre Patientinnen und Patienten wohlfühlen und gut aufgehoben wissen sollen. Um etwaige räumliche Veränderungen zu ermöglichen, möchten wir Ihnen eine großzügige, lichtdurchflutete Fläche mit 328 Quadratmetern im ersten Obergeschoss einer ansprechenden Immobilie im Herzen von Zittau anbieten. Die Fläche befindet sich in einem repräsentativen Gebäudekomplex, der nur wenige Schritte vom Marktplatz, Apotheken und Gastronomieangeboten entfernt liegt. Dank dieser zentralen Lage ist Ihre zukünftige Praxis sowohl für Patientinnen und Patienten als auch für Mitarbeitende optimal erreichbar. Ob großzügige Behandlungs- und Untersuchungsräume oder ein einladender Empfangsbereich: Die Raumaufteilung kann vollständig auf Ihre Behandlungsweise und Ihre Präferenzen angepasst werden. Auch die Modernisierung der Räumlichkeiten erfolgt in enger Abstimmung mit Ihnen. Auf Wunsch unterstützen wir Sie zusätzlich bei der Praxiseinrichtung und bieten maßgeschneiderte Finanzierungsmöglichkeiten, falls Sie eine möblierte Ausstattung bevorzugen. S O N S T I G E S IHRE VORTEILE AUF EINEN BLICK: - Barrierearmer Zugang dank eines Fahrstuhls - Vorhandenes behindertengerechtes WC (zzgl. WC-H und WC-D) - Individuelle Planung Ihres Raumkonzeptes, abgestimmt auf Ihre Präferenzen - Zentrale Lage und hervorragende Verkehrsanbindung Die Mietpreisangabe versteht sich als Nettokaltmiete je m².

Adresse

Straße

XXX

Hausnummer

XXX

PLZ

XXX

Praxisort

XXX

Land

XXX

Praxisdetails

Bezugsfertig ab

Sofort

Neubezug

Ja

Bisheriger Praxistyp

Ohne

Geeignet als Praxistyp

Einzelpraxis

Geeignet für folgende Fachgebiete

Hausarzt, Allgemeinmedizin, Dermatologie, HNO, Kieferorthopädie, Kinder- und Jugendpsychotherapie, Pädiatrie, Physikalische und Rehabilitative Medizin, Psychotherapie und Psychosomatische Medizin, Neurologie

Weitere Fachgebiete im Haus

Gynäkologie

Kaufpreis/Mietzins

XXX
Kein Makler
Angabe zum Kaufpreis nur im persönlichen Gespräch
Sofort
5
3

Immobilie

Gebäudetyp
Praxisetage, Wohn-Praxisgebäude , Wohn-Geschäftsgebäude
Baujahr
1994
Letzte Sanierung der Praxis
Neubezug
Lage der Praxisräume (Etage)
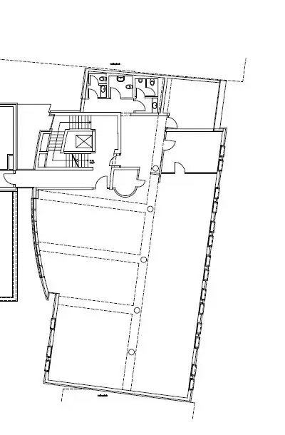
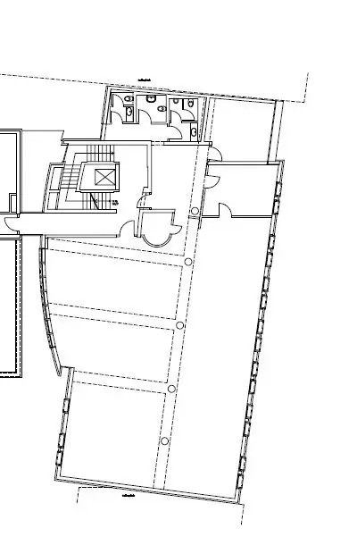
1 OG , Praxisetage
Fahrstuhl vorhanden
Ja
Größe der Arztpraxis in qm
328
Weitere Mieter im Haus
Medizinische Versorger
Lage und Infrastruktur
Lage der Praxis im Ort
Gelegen im Zentrum von Zittau bietet Ihnen die nähere Umgebung zahlreiche Einkaufs- und Essensmöglichkeiten. Dazu gehören Bäckereien, Supermärkte, Bistros, Restaurants und Apotheken. Auch der Marktplatz befindet sich nur wenige Gehminuten entfernt. Gegenüber des Geschäftshauses liegt das historische Salzhaus samt Vorplatz. Unweit des Gebäudes verläuft die B96 / die Ringstraße und bietet dadurch eine angenehme Anbindung für Sie und Ihre Mitarbeitenden. Stellplätze können Sie in der hauseigenen Tiefgarage anmieten. Ihre Besucher und Besucherinnen finden direkt vor dem Objekt einen öffentlichen Parkplatz.
Einwohnerzahl des Praxisortes
25.286

Inventar

Beschreibung und Ausstattung der Praxisräume
Ob großzügige Behandlungs- und Untersuchungsräume oder ein einladender Empfangsbereich: Die Raumaufteilung kann vollständig auf Ihre Behandlungsweise und Ihre Präferenzen angepasst werden. Auch die Modernisierung der Räumlichkeiten erfolgt in enger Abstimmung mit Ihnen. Auf Wunsch unterstützen wir Sie zusätzlich bei der Praxiseinrichtung und bieten maßgeschneiderte Finanzierungsmöglichkeiten, falls Sie eine möblierte Ausstattung bevorzugen.

Medizinische Infrastruktur

Filter

Filter Ärzte
    Filter Klinik
      Filter Heilberater

        Ansprechpartner

        XXX
        XXX
        XXX

        Expose

        Bitte registrieren oder einloggen, um alle Details zu sehen.

        Zur Registrierung / Login

        Arztbörsen Ratgeber & Broschüren

        Standortanalyse & Geomarketing

        Arztbörsen Services

        Inserieren